1к Либідська (№ 111-983-704)
Ціна: 18 000 грн.

Характеристики
Ціна: | 18 000 грн. |
---|---|
№ об'єкта: | 111-983-704 |
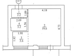
Кімнат: | 1 |
Поверх: | 8 / 8 |
Площа: | 38 / - / - м2 |
Санвузол: | сумісний |
Балкон: | балкон |
Адреса: Київ, Печерський, Велика Васильківська, 129, м. Либідська
Здається затишна квартира метро Либідська.